Un style de vie qui allie liberté, confort et lien social. A La Meije, tout est pensé pour que vous vous sentiez bien, tout de suite.
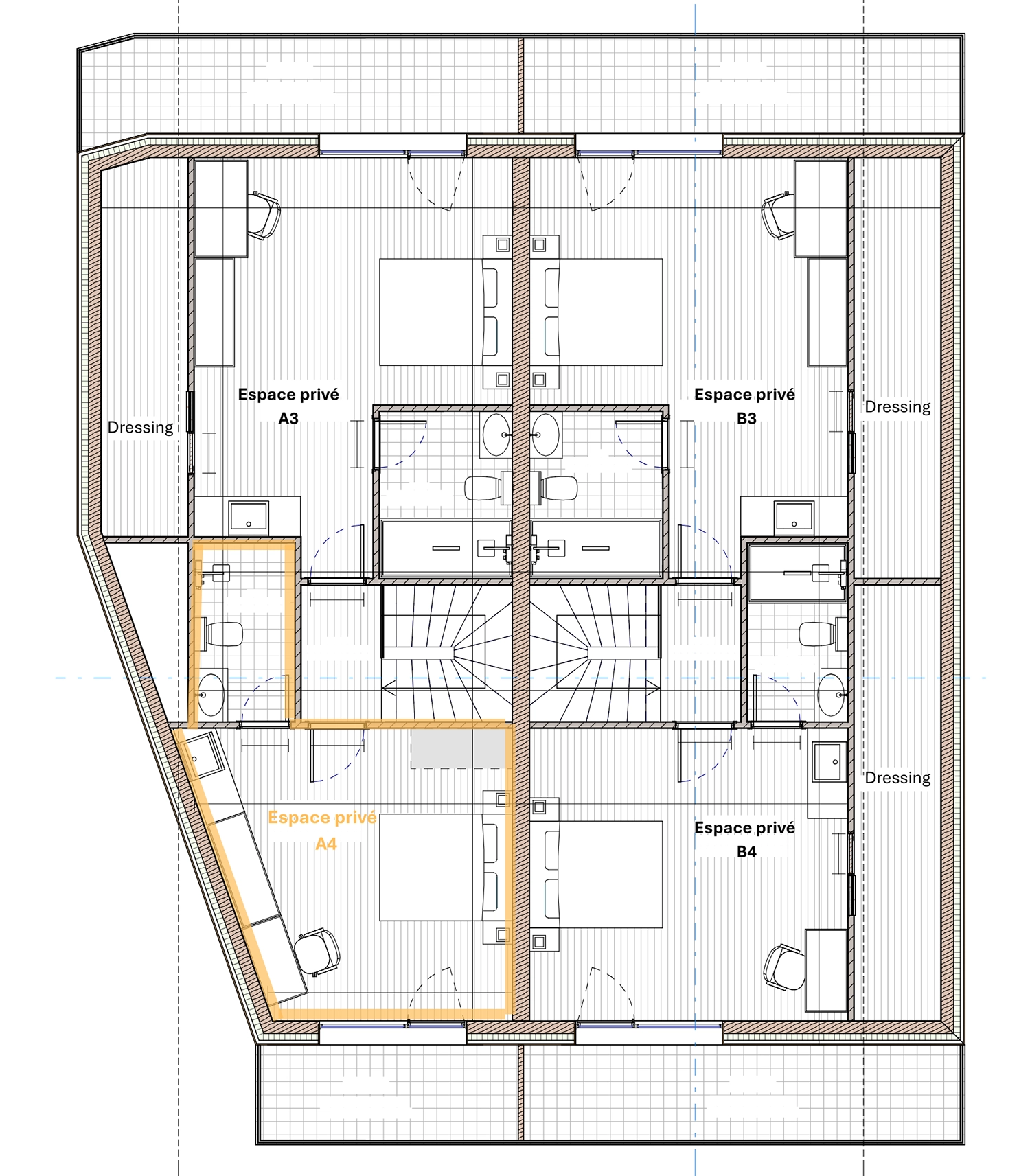
Nous vous proposons un logement meublé de 32 m² situé dans un environnement coliving convivial à La Meije. Ce logement comprend une salle de bain privée, un lit 160 cm avec 1 chevet, une armoire-penderie, une cuisinette équipée avec évier, plaque 2 feux, bouilloire, frigo et micro-onde, ainsi qu’un coin bureau avec chaise et étagère et un fauteuil.
Les espaces communs incluent une cuisine entièrement équipée avec électroménagers modernes, une salle à manger avec table et chaises, un espace salon avec canapé et TV avec Box Wifi et applications TV, ainsi qu’un espace extérieur en rez-de-jardin avec mobiliers outdoor. D’autres commodités sont à votre disposition, telles qu’une buanderie avec lave-linge et sèche-linge et un local à vélo sécurisé.
A la Meije, vous disposez gratuitement de 4 places de parc couvertes et de 5 places de parc non couvertes. Des options de coliving sont proposées, notamment un ménage tous les 15 jours dans votre espace privé et une blanchisserie tous les 15 jours pour votre linge de lit et de toilette.
Les charges pour le A4 sont de CHF 228.-. Les options de coliving pour le A4 est de CHF 57.- pour le ménage et de CHF 24.- pour la blanchisserie. Le loyer total est à déterminer selon les options de coliving de votre choix.
Nous vous invitons à nous contacter pour plus d’informations.
Étudiants en quête d’un cadre de vie serein
Jeunes professionnels en mission ou en mobilité
Freelances & créatifs cherchant un environnement stimulant et inspirant
Route de Chermoran 26a-b, 3975 Crans-Montana
Nous vous proposons un logement meublé de 30 m² situé dans un environnement coliving convivial…
Disponible à partir du 1er février 2027
Surface : 30 m²
A partir de CHF 1’280.-/mois
Nous vous proposons un logement meublé de 26 m² situé dans un environnement coliving convivial…
Disponible à partir du 16 janvier 2027
Surface : 26 m²
A partir de CHF 1’195.-/mois
Nous vous proposons un logement meublé de 50 m² situé dans un environnement coliving convivial…
Disponible à partir du 1er juillet 2026
Surface : 50 m²
A partir de CHF 1’550.-/mois
Nous vous proposons un logement meublé de 32 m² situé dans un environnement coliving convivial…
Disponible à partir du 16 juillet 2026
Surface : 32 m²
A partir de CHF 1’360.-/mois
Nous vous proposons un logement meublé de 35 m² situé dans un environnement coliving convivial…
Disponible à partir du 1er mars 2026
Surface : 35 m²
A partir de CHF 1’495.-/mois
Nous vous proposons un logement meublé de 26 m² situé dans un environnement coliving convivial…
Disponible à partir du 1er décembre 2026
Surface : 26 m²
A partir de CHF 1’195.-/mois
Nous vous proposons un logement meublé de 51 m² situé dans un environnement coliving convivial…
Disponible à partir du 1er février 2027
Surface : 51 m²
A partir de CHF 1’590.-/mois
Nous vous proposons une habitation meublé de 46 m² situé dans un environnement coliving convivial…
Disponible à partir du 1er mars 2026
Surface : 46 m²
A partir de CHF 1’525.-/mois
Pour offrir les meilleures expériences, nous utilisons des technologies telles que les cookies pour stocker et/ou accéder aux informations des appareils. Le fait de consentir à ces technologies nous permettra de traiter des données telles que le comportement de navigation ou les ID uniques sur ce site.